好宅即是豪宅!对许多现代人来说,经过多年职场打拼之后,构筑一处能随着家人成长,经典耐看,越住越好住,并且在其中俯拾可得生活美学,可以豢养梦想、孕育感动的理想空间,才是真正心灵上、实质上的富有。

隐形的奢华气度、隽永的经典品味,要如何植入空间之中呢?此案从玄关质材的组合选搭,便揭开引人入胜的迎宾气度,而随着动线,小编惊喜发现多处实用的微型空间以隐匿手法巧妙嵌入。环顾室内,现代风格与自然写意混搭交融,并佐以四大主色和谐共舞,在在体现高贵雅致、耐人寻味的美学质感。想知道得更详细吗?那就跟着小编的脚步,一窥究竟吧!
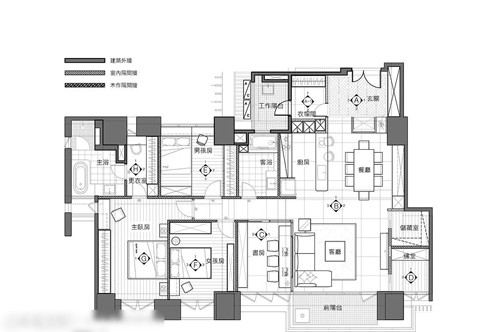
房屋面积:138㎡左右(室内)
设计风格:现代混搭风格
居住成员:夫妻、小孩×2
空间格局:2厅、3房、2卫
现代混搭风格1、善用质材妆点空间气度
运用亮面、反射质地的建材,或是重点铺叙纹路华美的石材,再拿捏合宜的比例切割,就能成功勾勒明亮轻奢质感,达到彰显空间气度的作用。例如此案的玄关地坪是使用黑、白大理石以菱形交错拼接,两侧墙面则选择柚木色的木质与黑色钢琴烤玻、大面镜子组构而成,不但形塑视觉的放大效果,也释放精致高雅、大器敞朗的迎宾氛围。
来到客厅,银灰色大理石的电视墙以顶天立地的存在攫住目光,完美显现气势。依著视角上抬,那特意镶入银箔纸染金的天花,让洒落的光影流动都仿佛有了镀金镀银的低调奢华之美,而大量的木纹又适当地调和雍容与沉稳,一切都恰到好处。




现代混搭风格2、挹注人文意象、丰富居家美学视角
在居家空间中施以蕴含品味的美学陈设,或是安放拥有灵魂与回忆的生活物件,既陶养、滋润居住者的心灵,也能表现屋主特有的格调与品味。因着落地窗及阳台景观的优势条件,设计师特意在客厅的沙发背墙铺排格栅造型,东方禅风的人文意象与自然纹理,缀以花卉图框,与户外南方松地板、绿色植栽相互呼应,沙发上铺满柔软温存的抱枕,自然写意的氛围即使待上一整天也不厌倦。而一旁餐厅一座有些许年岁、满布时光痕迹的老餐桌,印记着家人的温馨点滴,继续诉说有滋有味、属于家的故事。



现代混搭风格3、经典色系,和谐不NG的色调之美
色调也是营造环境氛围的主力之一,想让居家呈现或清冷或明艳或温暖或稳重的气氛,都可以借由色彩的魔法棒来挥洒。设计师除了将木质、烤玻、石材的质材语汇不断出现于室内,也召集黑、白、绿、木色这四种不容易NG的色彩,在公私领域贯串蔓延,例如餐厨区、有着斜角造型的书房、以半和室概念设计的男孩房,以及有着镂花黑件装饰喷砂玻璃的更衣室的主卧等等,整体风格轮廓因一致性而立体饱满,耐看的色彩调配也赋予空间大器隽永的生命力。




现代混搭风格4、合宜定义场域尺度、增加使用价值
坪效的利用能增加房子使用上的价值,但大而无用,或是过多切割而制造出不合住的小空间,都非上上之选。舍子美学设计从此案的格局规画即开始布局,保留合宜、舒适的场域尺度之后,将厨房、客厅适当让渡些许空间,分别安排出格局完整、线条方正的微型领域,包含在玄关旁的衣帽间,及在客厅电视墙后的储藏室及佛堂。虽然微小但设计上仍丝毫不马虎,衣帽间为可走入式,具有大量的收纳机能,而佛堂则是采简约利落的布置,这三处微空间都被以柚木门板收于墙后,隐匿的设计手法还原空间的清爽大器,而弹性灵活的实用机能,也大大提升生活的便利性。



这一家人很乐于彼此分享生活与心情,而营造舒适的环境氛围更能增进情感凝聚及与空间相处的时光,设计师运用了许多穿透手法,让场域串连更形通透自在。一座富有情感与美学品味的居宅,是珍藏幸福、典藏经典的最好的宝库。

